
Access for All Tool Kit
Inclusive Design Templates
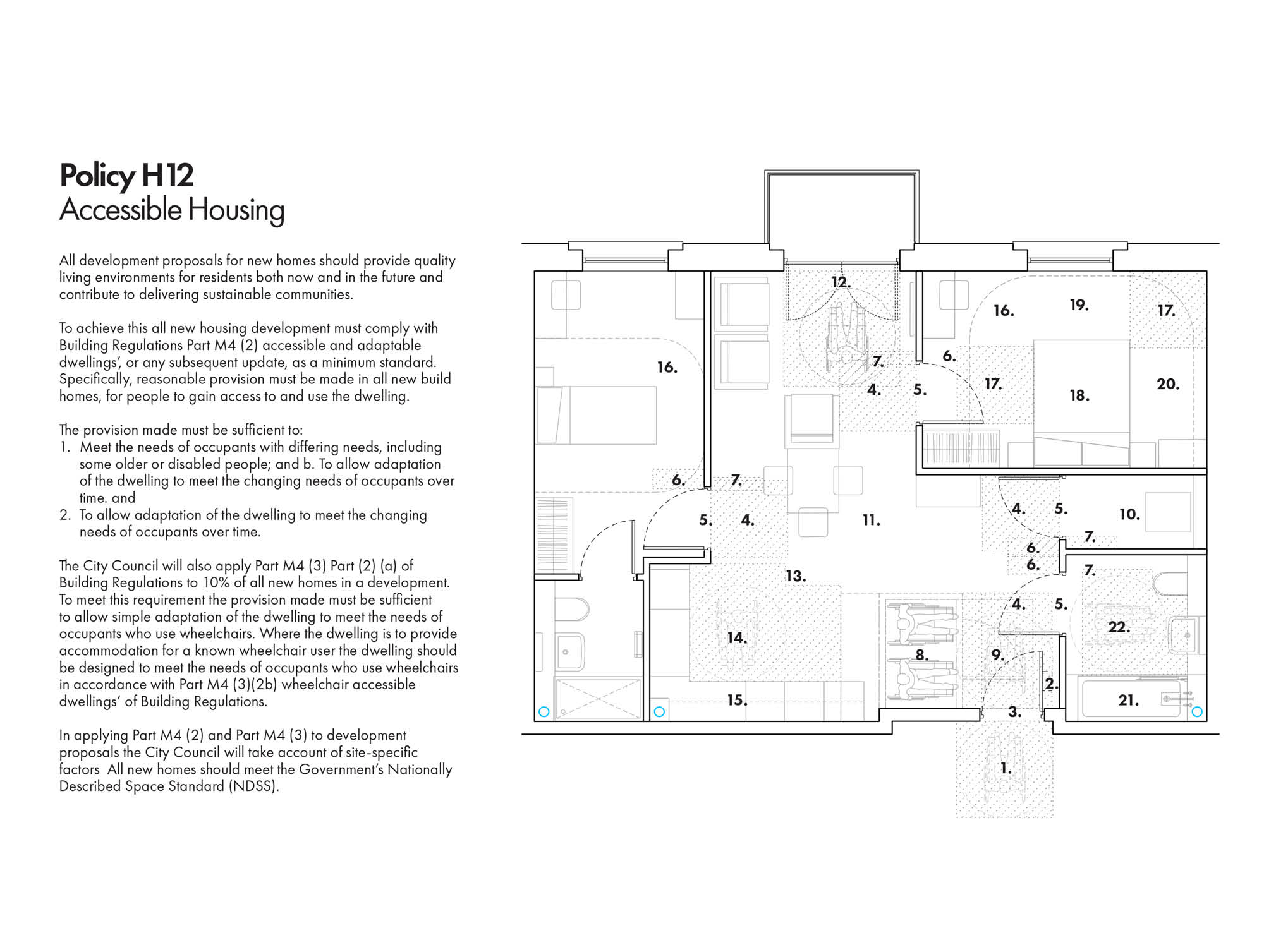
This tool kit gives you example layouts and isolated diagrams for use on future projects helping you to ensure compliance with access and use of buildings in line with building regulations. With this pack you can't go wrong with making sure your designs are suitable for all users. File formats are PDF & CAD so you can use them right away.
This pack and the full ArchAdemia library.
About this resource
This tool kit gives you example layouts and isolated diagrams for use on future projects helping you to ensure compliance with access and use of buildings in line with building regulations. With this pack you can't go wrong with making sure your designs are suitable for all users. File formats are PDF & CAD so you can use them right away.
- Architecture professionals
- Planning consultants
- Housing developers
- Accessibility specialists
- Building regulation compliance
- Inclusive design principles
- Professional liability protection
- Universal accessibility
All download packs come as a digital download. You'll receive download links via email immediately after purchase. Files are typically delivered in ZIP format containing all resources.
ArchAdemia download packs are for single, educational use only. Commercial use requires additional licensing. We take no liability for any harm resulting from re-purposing the packs without your own due diligence.
If you're a project architect/architectural technologist on a live project proposing construction details, you must apply your own knowledge, experience and professional indemnity to the output of your production information.
ArchAdemia Support
How can we help?


